Why is Walmart’s CEO retiring?
What impact will the US-Switzerland trade deal have?
How did Walmart’s CEO transform the company?
Why is Berkshire Hathaway buying Alphabet shares?
What caused bitcoin’s recent price drop?
How will Google’s $40B data center investment affect Texas?
Why are AI stocks causing market volatility?
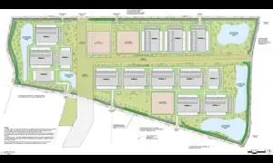
Yorkville City Council gives first green light to controversial 1,000-acre data center campus
chicagotribune.com/2025/11/14/yorkville-data-center-gets-first-green-light
After months of discussion — and some resident opposition — the Yorkville City Council has given a first green light to a roughly 1,000-acre data center campus proposed in the area.
The proposed data center project, called Project Cardinal, is being brought forward by Pioneer…
This story appeared on chicagotribune.com, 2025-11-14 21:30:17.